Canadian Women’s Foundation

Non-Profit Design

AutoCAD, Rhino3D, Twinmotion Rendering, Adobe Illustrator + Photoshop

A non-profit design project which places focus on considering the needs of a selected Canadian charity.

The design proposes a satellite facility for the Canadian Women’s Foundation located at 158 Sterling Road, Toronto, acting as an all-in-one community and wellness space.

The space aims to accommodate women of the community and promote connection between volunteers, professionals, and participants to provide wrap around support.

Logo

Parti Sketch

Adjacency Diagram

Program Diagram

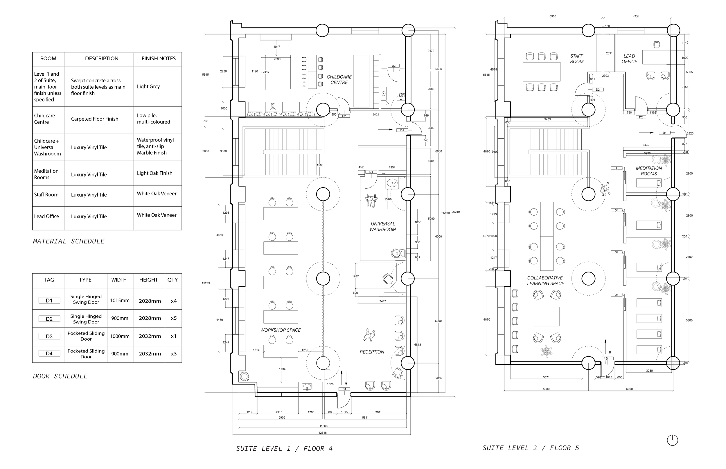
Floor Plans

Workshop Space Render

Reflected Ceiling Plans

Elevations

Section B - Lighting Analysis

Door Detail Section - D2

Previous
Previous

Orfeo Ed Euridice

Next
Next

Housing Memories